你好,游客
登录
注册
搜索
首页
关于我们
企业简介
企业文化
产品中心
高低压开关柜
配电箱
母线槽系列
桥架系列
抗震支吊架
企业文化
资质证书
新闻中心
联系我们
首页
关于我们
企业简介
企业文化
产品中心
高低压开关柜
配电箱
母线槽系列
桥架系列
抗震支吊架
企业文化
资质证书
新闻中心
联系我们
当前位置:
首页
→
产品中心
→
高低压开关柜
快捷导航
about
产品中心
高低压开关柜
配电箱
母线槽系列
桥架系列
抗震支吊架
联系我们
Contact Us
镇江亘古电力科技有限公司
联系人:王总
手机:13805292798
电话:0511-88201616
传真:0511-88201616
网址:www.zjggdl.com
地址:扬中市中国石化联合加油站北侧
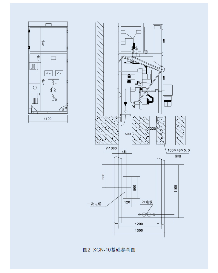
XGN2-12固定式金属封闭开关设备